宴会厅
返回场馆列表

宴会厅

我们的两个较小的宴会厅非常适合举办私密的庆祝活动,集优雅与多功能于一体。这些精致的房间非常适合举办婚礼或招待会,既能满足个性化的需求,又能保持华丽的感觉。 

219-291 平方米 可容纳 200-450 人
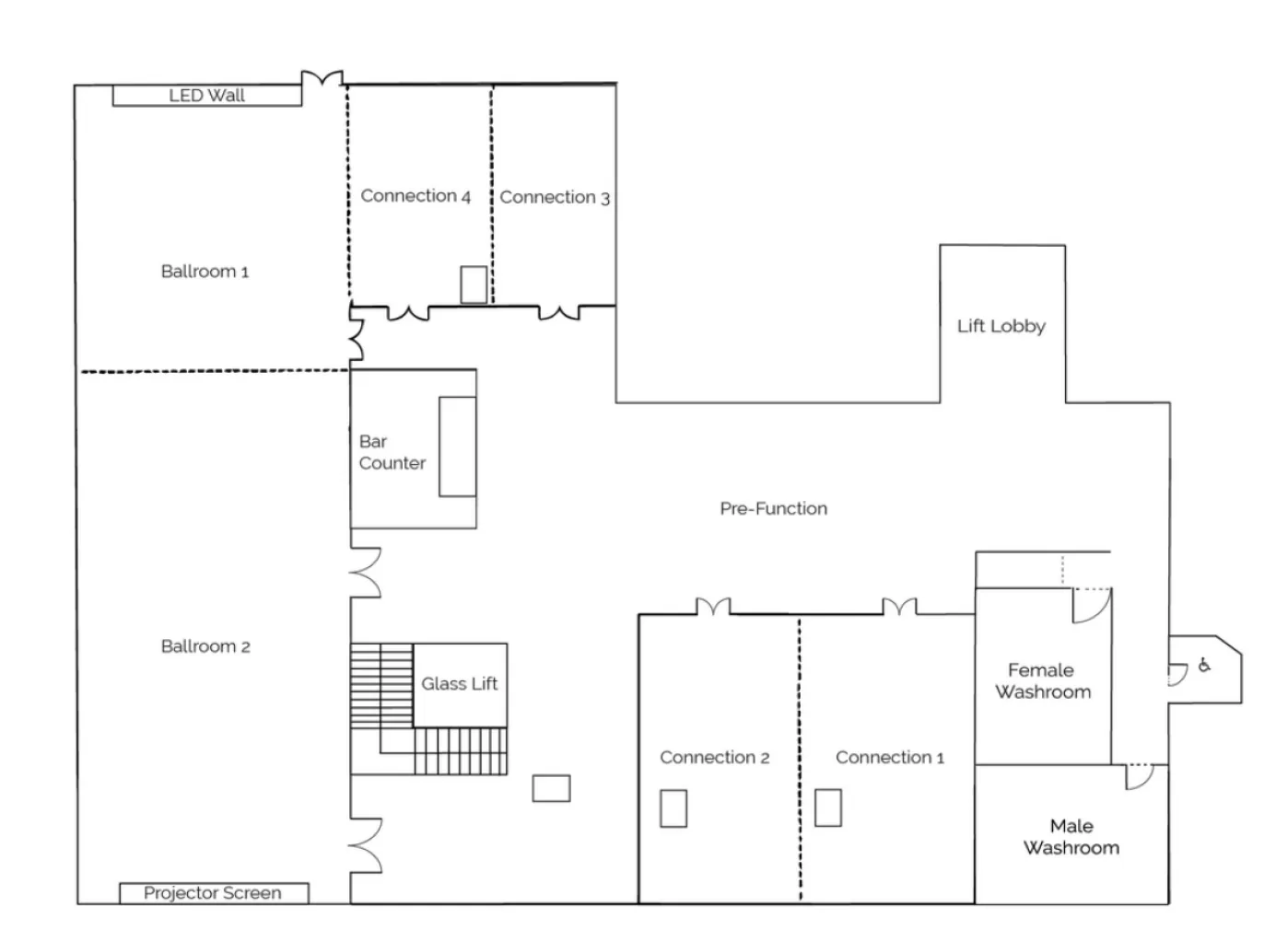
平面图
宴会厅高度(米)
3.6
面积(平方米)
219-291
礼堂座位
200-450
宴会座位
100-300
自助餐座位
100
教室座位
96-252
鸡尾酒座
150-400
U 型座椅
51-105

其他推荐地点

无柱空间的一侧是落地窗,自然阳光洒满了中性色调的空间。大宴会厅可容纳多达 500 人,其 38 米长的走道可轻松将该空间转变为一个大型宴会厅,或通过其 7.6 米长的 LED 视频墙将其转变为一个充满活力的大型会议场所。
我们独特的开放式空间是餐前交流和饮酒的理想场所。环境照明和可调节的布置为主要活动奠定了优雅的基调。
我们的多功能厅非常适合举行私密性较强的仪式,将功效与风格完美融合。每个空间可容纳 50 到 60 位宾客,确保您的活动在舒适的氛围中进行。